Indeling Plattegrond tekenen

KLIK OP DE FOTO VOOR MEER 📸

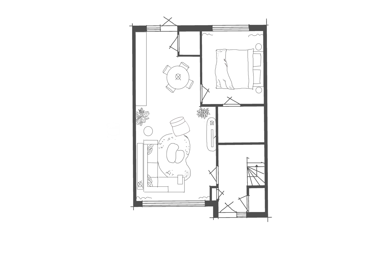
Op deze pagina vind je diverse plattegronden en indelingen die ik in opdracht van verschillende klanten heb ontworpen.
Van strakke zwart-wit schetsen tot kleurrijk uitgewerkte plattegronden – helemaal afgestemd op de wensen van de opdrachtgever.

Benieuwd wat ik voor jou kan betekenen? Neem gerust contact met me op via telefoon of e-mail!

IMG 7159
IMG 7158
IMG 6998
IMG 7157
IMG 7162
IMG 7164
IMG 7160
IMG 7155